In the XXth century, Bogotá experienced rapid population growth and significant industrial and commercial development. These new dynamics stimulated the urban footprint expansion towards what was once the periphery, creating new centralities evermore distant from the historic city center. Consequently, the traditional downtown sector, where the study area is located, went from being a modern business center, to a disused zone with an almost suburban density. Furthermore, during the expansion process, the city lost 95% of its wetlands and, only between 1991 and 2001, Bogotá lost at least half of its green areas, to make way for new urban settlements. Thus, it is worrying to think about the consequences of urban expansion, knowing the city continues to grow, now towards the surrounding municipalities. This poses the challenge of optimizing the city’s capacity to respond to the growing demand for urban facilities, housing and public space, without compromising the scarce permeable soil.
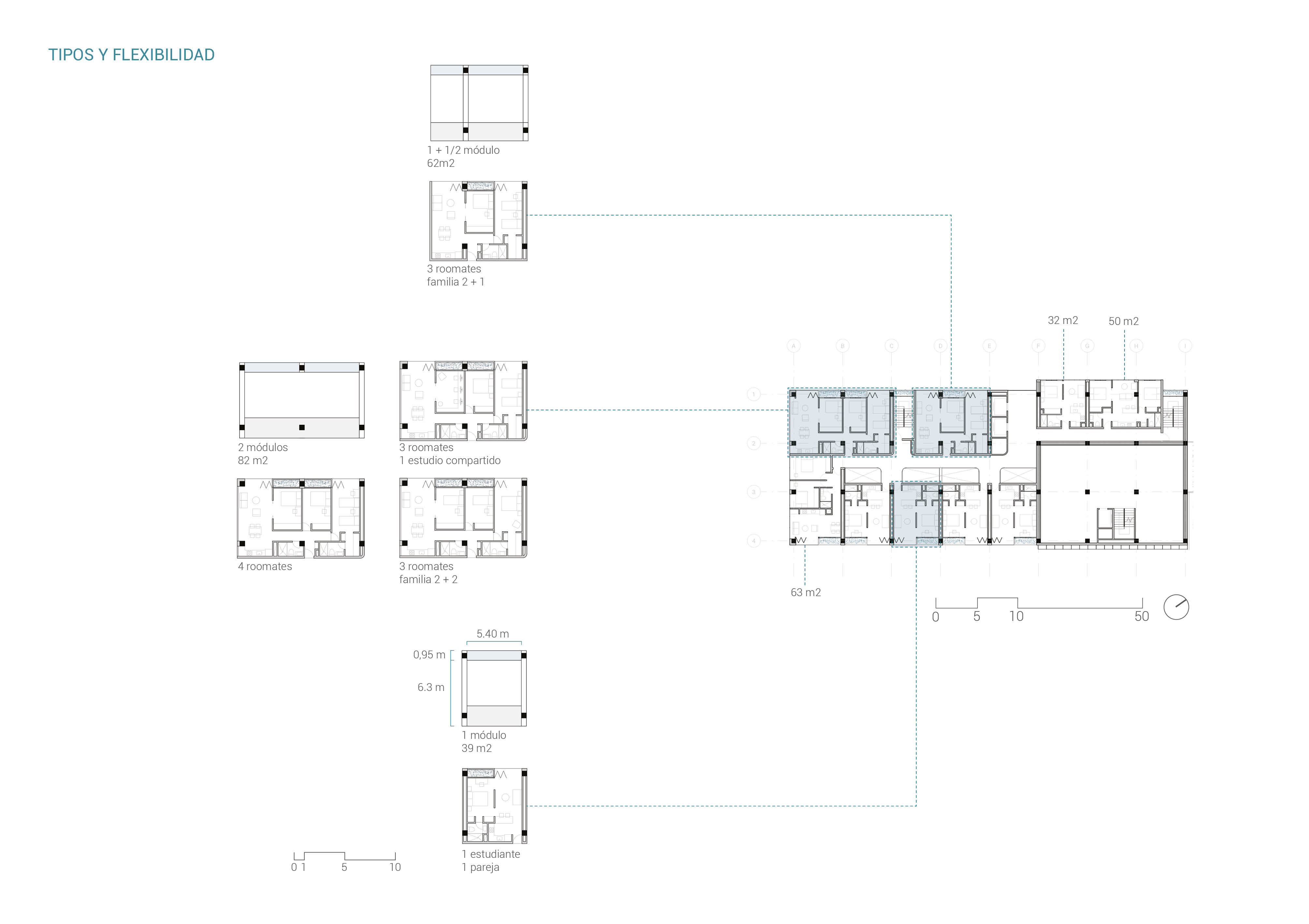
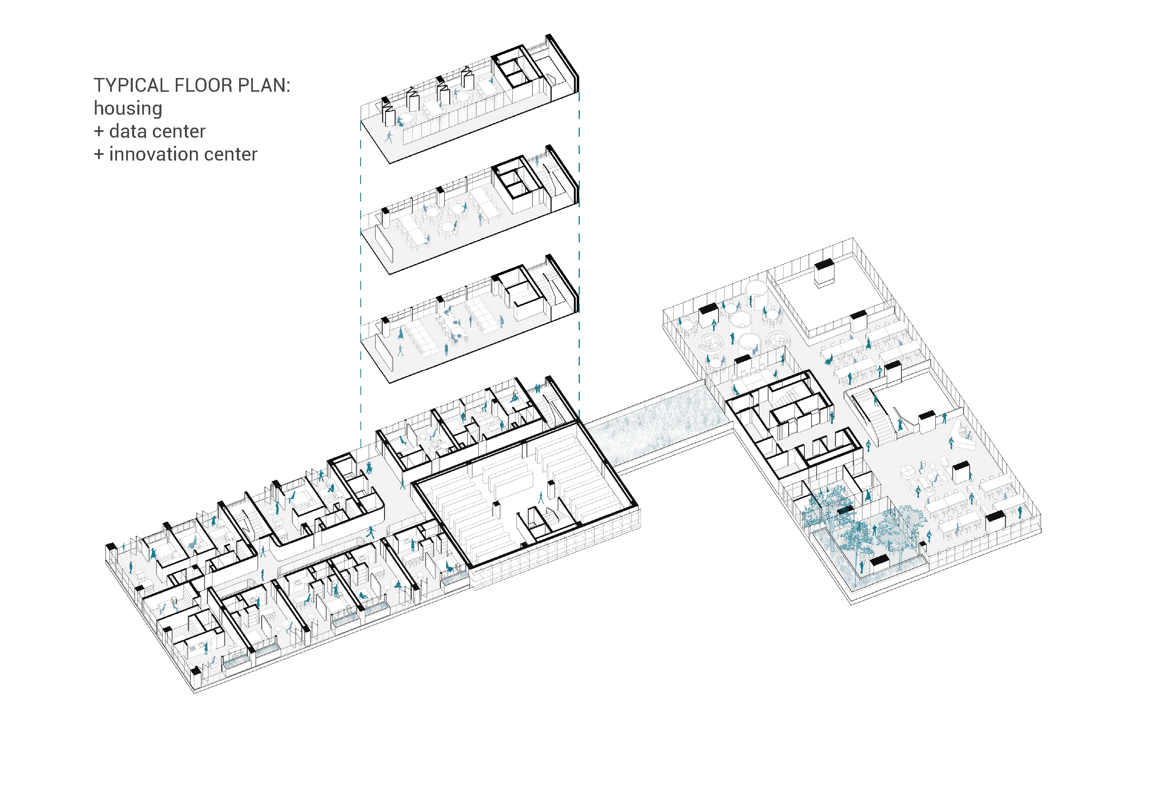
Innovation Laboratory is an urban renovation project which allows experimentation in areas of architecture such as housing, public space and an innovation center in a disused block in the historical center of Bogotá, Colombia. Considering that the block was formerly the headquarters of Telecom (the main telecommunications company in Colombia until its bankruptcy in 2003) and taking into account the creative and investigative potential identified in this area, the project aims to reposition the block as an innovation hub. This is achieved by building a campus for the generation of creative ideas, which is composed of open floor plans and terraces to stimulate interaction, synergy and the development of innovative products; a space to learn, create, share and exhibit knowledge, which improves the competitiveness of the city and propels both its social and economic development.
Sustainability is the backbone of the proposal. Therefore, the intervention is based on three main strategies: first, the conservation and repurposing of existing structures to preserve the area’s identity and minimize the CO2 footprint; second, the creation of flexible work and residential spaces, capable of evolving over time to avoid obsolescence; finally, the regeneration of a green public space where stormwater and wastewater are naturally treated for their reuse within the project, ensuring an ideal integration of the urban and natural environments and providing a space that contributes to the well-being and connection of users, residents and visitors of the project.
Thus, the Innovation Laboratory establishes a sustainable model for interventions in abandoned central areas, that promotes economic development, increases quality of life and positions the environmental aspect as the main axis of urban transformation.
